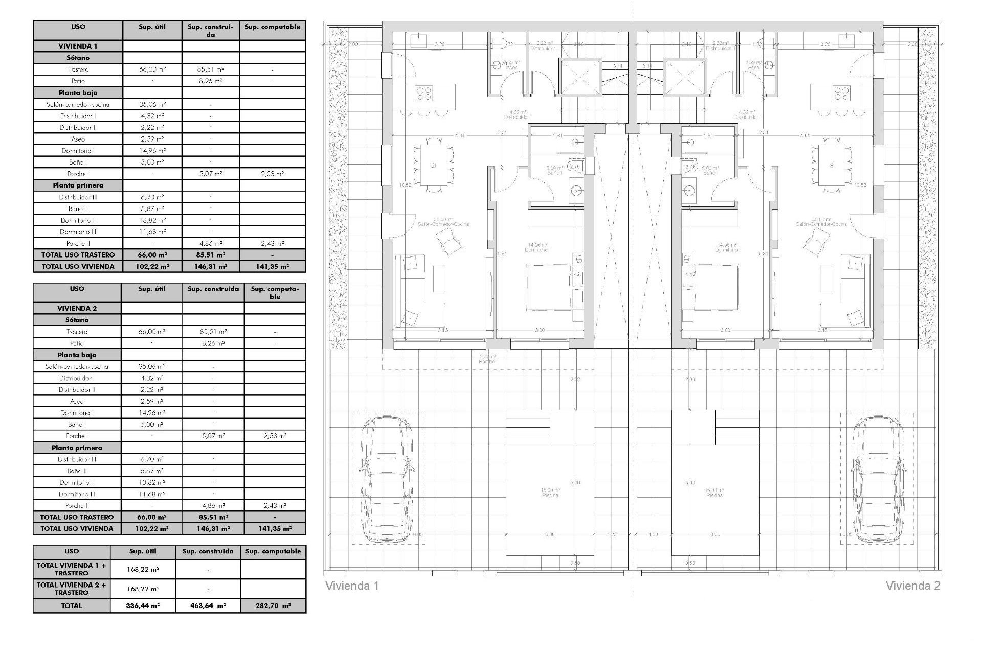
Luksusowe, nowo wybudowane bliźniacze wille w Benijófar – Costa Blanca Living~~Doskonała lokalizacja w Benijófar~Te ekskluzywne, nowo wybudowane bliźniacze wille położone są w uroczej miejscowości Benijófar, jednej z najbardziej pożądanych lokalizacji na wybrzeżu Costa Blanca. Znane z połączenia tradycji i nowoczesnego stylu życia, Benijófar oferuje wszystkie niezbędne usługi, w tym supermarkety, apteki, banki, restauracje i lokalne sklepy. Osiedle jest strategicznie położone zaledwie 10 km od złotych plaż Guardamar del Segura i tylko 30 km od lotniska w Alicante, co czyni je idealnym miejscem zarówno do stałego zamieszkania, jak i na wakacje.~~Przestronny i nowoczesny projekt~Każda willa została zaprojektowana w nowoczesnym stylu, maksymalizując przestrzeń i naturalne światło. Układ obejmuje trzy sypialnie (jedną na parterze i dwie na pierwszym piętrze) oraz trzy łazienki (w tym jedną w piwnicy), dzięki czemu idealnie nadają się dla rodzin i gości. Otwarty salon z jadalnią płynnie przechodzi do w pełni wyposażonej kuchni, tworząc ciepłe i funkcjonalne środowisko. Duże okna zwiększają jasność w całym domu.~~Najwyższej jakości wyposażenie i dodatki~Wille te wyróżniają się wysokiej jakości wykończeniem i przemyślanymi detalami:~Piwnica o powierzchni 66 m2 z łazienką, galerią i pralnią~Prywatny basen, solarium z grillem i zlewem~Ozdobny kominek w salonie~Prywatny parking na terenie działki~Winda z piwnicy na najwyższe piętro~3 panele fotowoltaiczne i oświetlenie LED w całym domu~Wstępnie zainstalowana klimatyzacja~W pełni wyposażone łazienki z meblami i kabinami prysznicowymi~Działki o powierzchni od 200 m2~~Styl życia i otoczenie~Benijófar łączy w sobie urok tradycyjnej hiszpańskiej wioski z wygodą nowoczesnych usług. Miłośnicy przyrody będą zachwyceni pobliskim parkiem przyrodniczym, idealnym do spacerów i jazdy na rowerze. Miłośnicy golfa znajdą pole golfowe La Marquesa Golf w odległości zaledwie 5 km, a kilka innych najlepszych pól golfowych znajduje się w promieniu 15 km. Rodziny mogą odwiedzić parki wodne w Rojales (4 km) i Torrevieja (12 km) lub zwiedzić tętniące życiem miasto Torrevieja, oddalone o zaledwie 12 km.~~Doskonałe połączenia komunikacyjne~Wille mają łatwy dostęp do autostrad N-332 i AP-7, co zapewnia szybkie połączenie z Alicante, Elche, Orihuela Costa i Murcją. Okolica oferuje idealną równowagę między spokojem, udogodnieniami i dostępnością.~~Twój wymarzony dom na Costa Blanca~Doświadcz luksusu, komfortu i śródziemnomorskiego stylu życia w tych wspaniałych nowych willach w Benijófar. Skontaktuj się z nami już dziś, aby uzyskać więcej informacji i umówić się na oglądanie swojego przyszłego domu.~